宝町千島ビル 八丁堀の賃貸事務所
※事業用物件は 賃料・共益費・管理費等が税込表記です
【建物外観】
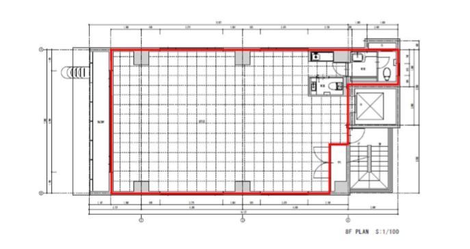
【間取】 8階:28.94坪・95.67u
【エントランス】
【地図】
【建物外観】
【建物外観】
【建物外観】
【その他共有部分】 1階エントランス
【エントランス】
【その他共有部分】 エレベーターホール
【エントランス】
【エントランス】
【周辺】 前面道路
【周辺】 前面道路
【セキュリティ】
【室内】 8階室内
【室内】 8階室内
【宝町千島ビルについてスタッフからのイチオシポイント!】「八丁堀」駅徒歩3分の他、「宝町」駅や「東京」駅も利用できアクセス良好です。ビルはそこまで大きなビルではないのですが、重厚感のあるビルです。外観、エントランスもとても綺麗にしています。八
宝町千島ビルは東京都中央区八丁堀3丁目9-8【東京メトロ日比谷線 八丁堀駅徒歩3分】にある賃貸事務所です。1992年11月築の10階建ての事務所で、物件は10階建ての8階部分です。物件の広さは28.94坪です。 ※物件のもっと詳しい内容や入居時期、諸条件のご相談など、ホームページには掲載が間に合わず載せきれていない情報もございます。 気になることが御座いましたらお気軽にメールにてお問い合わせください。
※各種情報と差異がある場合は現況優先となります
近隣スポット情報
この物件に似た物件をチェック!
閲覧した物件の履歴こだわり条件から中央区の物件を探す最近検索した条件一覧
▲ページのTOPへ戻る |
| |||||||||||||||||||||||||||||||||||||||||||||||||||||||||||||||||||||
![]() |
![]() |
![]() |
