バンセイ室町ビル 新日本橋の賃貸事務所
※事業用物件は 賃料・共益費・管理費等が税込表記です
【建物外観】
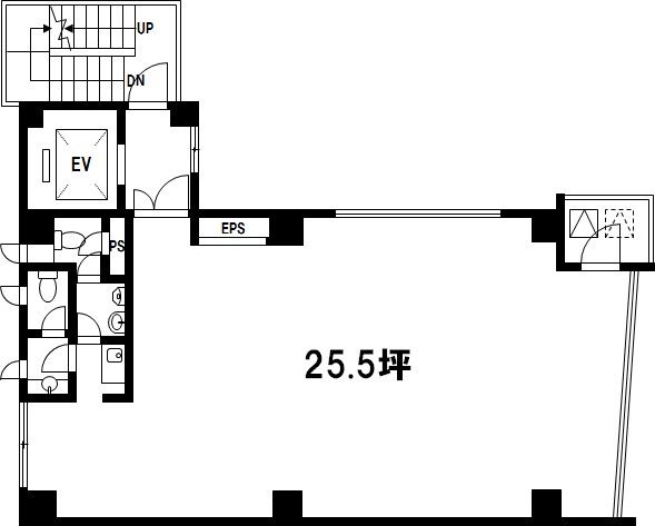
【間取】 5階:25.50坪・84.29u
【建物外観】
【地図】
【その他共有部分】
【その他共有部分】
【その他共有部分】
【その他共有部分】
【その他共有部分】
【その他共有部分】
【バンセイ室町ビル についてスタッフからのイチオシポイント!】徒歩5分圏内で3駅4路線利用可能、中央通りに面した視認性の良い新耐震基準適合ビルです。ビルには綜合警備保障による機械警備が導入されています。通りに面して一面窓がある為、室内は明るい事務所です。物件の詳細や類似物件ご希望の際は、お気軽にお問合せ下さい。
バンセイ室町ビル は東京都中央区日本橋室町4丁目3-12【JR総武本線 新日本橋駅徒歩1分】にある賃貸事務所です。1997年9月築の地上10階/地下1階建ての事務所で、物件は地上10階/地下1階建ての5階部分です。物件の広さは25.5坪です。 ※物件のもっと詳しい内容や入居時期、諸条件のご相談など、ホームページには掲載が間に合わず載せきれていない情報もございます。 気になることが御座いましたらお気軽にメールにてお問い合わせください。
※各種情報と差異がある場合は現況優先となります
近隣スポット情報
この物件に似た物件をチェック!
閲覧した物件の履歴こだわり条件から中央区の物件を探す最近検索した条件一覧
| ||||||||||||||||||||||||||||||||||||||||||||||||||||||||||||||||||||
| ▲ページのTOPへ戻る | ||||||||||||||||||||||||||||||||||||||||||||||||||||||||||||||||||||
![]() |
![]() |
![]() |
