アソルティ日本橋小伝馬町ビル 小伝馬町の賃貸事務所
※事業用物件は 賃料・共益費・管理費等が税込表記です
【アソルティ日本橋小伝馬町ビルについてスタッフからのイチオシポイント!】「小伝馬町」駅徒歩1分、平成8年築の駅近オフィスビルです。江戸通り沿いに立地しており、郵便局・銀行等も近くにあり便利です。1フロア1テナント。室内写真は参考写真となります。
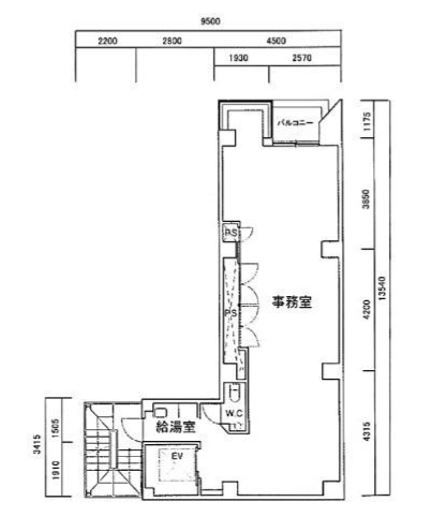
アソルティ日本橋小伝馬町ビルは東京都中央区日本橋小伝馬町13-5【東京メトロ日比谷線 小伝馬町駅徒歩1分】にある賃貸事務所です。1996年7月築の10階建ての事務所で、物件は10階建ての5階部分です。物件の広さは19.51坪です。 ※物件のもっと詳しい内容や入居時期、諸条件のご相談など、ホームページには掲載が間に合わず載せきれていない情報もございます。 気になることが御座いましたらお気軽にメールにてお問い合わせください。
※各種情報と差異がある場合は現況優先となります
近隣スポット情報
この物件に似た物件をチェック!
閲覧した物件の履歴こだわり条件から中央区の物件を探す最近検索した条件一覧
| |||||||||||||||||||||||||||||||||||||||||||||||||||||||||||||||
| ▲ページのTOPへ戻る | |||||||||||||||||||||||||||||||||||||||||||||||||||||||||||||||
![]() |
![]() |
![]() |
