| |||||||||||||||||||||||||||||||||||||||||||||||||||||||||||||||||
| 賃料 | 相談賃料相場 | 管理費 | 相談 | ||
|---|---|---|---|---|---|
| 敷金 / 礼金 | 相談 / 相談 | 保証金 | 相談 | ||
| 所在階 / 階数 | 7階 / 地上9階/地下1階 | 構造 | SRC造(鉄骨鉄筋コンクリート造) | ||
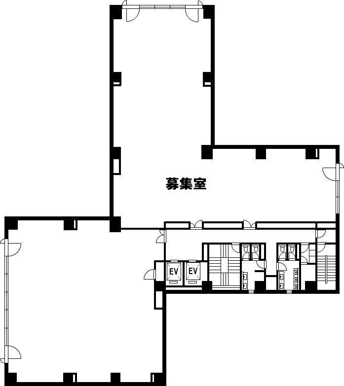
| 用途 / 面積 | 事務所 / 91.6坪 | 築年月 | 1991年4月 | ||
| 交通 |
東京メトロ日比谷線 「茅場町駅」 徒歩1分 東京メトロ東西線 「茅場町駅」 徒歩3分 |
||||
| 所在地 | 東京都中央区日本橋茅場町2丁目13-13 |
||||
物件詳細情報 |
| 現況 | 空き予定 | 入居可能日 | 2026年1月上旬 | |
|---|---|---|---|---|
| 取引態様 | 媒介 | 契約態様 | 定期借家 | |
| 他初期費用 | ||||
設備詳細情報 |
| 設備・条件・その他 | |
||
|---|---|---|---|
| 備 考 | ■天井高:2,600mm OAフロア:50mm ■電気容量:45VA/u ■ビル開館時間:平日6:30〜21:00 土6:30〜18:00 日祝:閉館(24時間入退館可能) |
||
物件周辺地図 |




















こちらの物件の空室状況 |
賃貸事務所 1,358,500円
茅場町駅 徒歩7分
95.00坪(314.04u)
駅徒歩7分と少し距離こそあれ、エリアでは比類なきスタイリッシュな設備・仕様にご注目下さい。
賃貸事務所 ご成約済
茅場町駅 徒歩5分
93.74坪(309.88u)
2013年9月耐震補強済、「水天宮前」駅徒歩2分、T-CAT徒歩2分のオフィスビルです。
賃貸事務所 ご成約済
茅場町駅 徒歩5分
89.13坪(294.64u)
平成6年築と竣工から20年以上経っていますが風格は全く衰えていません。芸術的な外観です。
賃貸事務所 ご成約済
茅場町駅 徒歩7分
94.54坪(312.52u)
東西線・日比谷線「茅場町」駅徒歩7分、永代通りの一本裏通りにある新耐震基準適合ビルです。
賃貸事務所 ご成約済
茅場町駅 徒歩3分
90.69坪(299.80u)
茅場町・八丁堀エリア100坪前後の中では、5本の指に入るおすすめ度です。
|
![]() |
![]() |
![]() |
