第一井上ビル 茅場町の賃貸事務所
※事業用物件は 賃料・共益費・管理費等が税込表記です
【建物外観】 平成11年8月全面改修済!
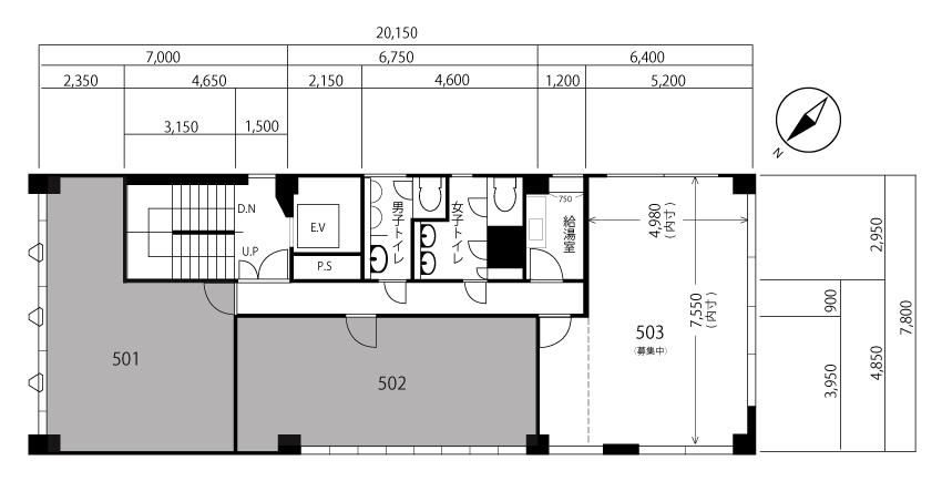
【間取】 503:17.16坪・56.74u
【エントランス】
【地図】
【その他共有部分】
【その他共有部分】
【駐車場】
【周辺】 前面道路
【周辺】 前面道路
【第一井上ビルについてスタッフからのイチオシポイント!】東西線・日比谷線「茅場町」駅徒歩1分、外観もおしゃれな物件です。ビルには機械警備が導入されており、日曜・祝日や時間外についても出入りができます。共用部に男女別トイレがあり使い勝手が良いです。物件の詳細や類似物件ご希望の際は、お気軽にお問合せ下さい。
第一井上ビルは東京都中央区日本橋茅場町2丁目14-1【東京メトロ日比谷線 茅場町駅徒歩3分】にある賃貸事務所です。1972年9月築の地上7階/地下1階建ての事務所で、物件は地上7階/地下1階建ての5階部分です。物件の広さは17.16坪です。 ※物件のもっと詳しい内容や入居時期、諸条件のご相談など、ホームページには掲載が間に合わず載せきれていない情報もございます。 気になることが御座いましたらお気軽にメールにてお問い合わせください。
※各種情報と差異がある場合は現況優先となります
近隣スポット情報
この物件に似た物件をチェック!
閲覧した物件の履歴こだわり条件から中央区の物件を探す最近検索した条件一覧
| ||||||||||||||||||||||||||||||||||||||||||||||||||||||||||||||||||||
| ▲ページのTOPへ戻る | ||||||||||||||||||||||||||||||||||||||||||||||||||||||||||||||||||||
![]() |
![]() |
![]() |
