ドゥーエ日本橋浜町 水天宮前の1LDK賃貸マンション
![]() 【建物外観】
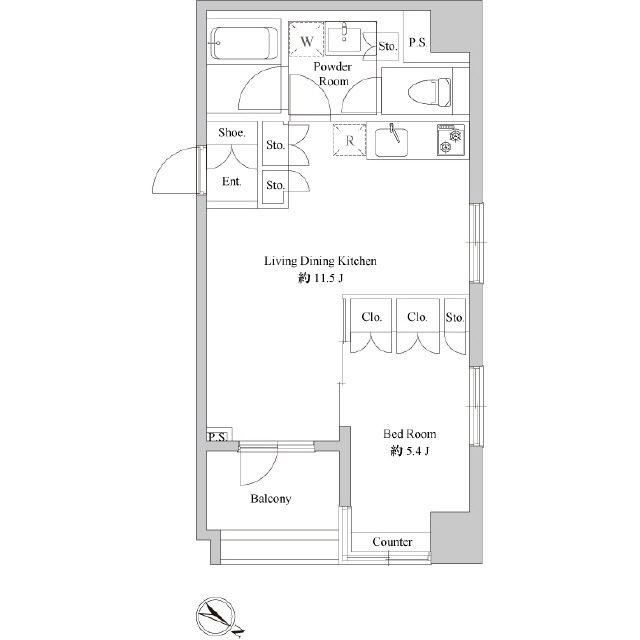
【間取】
【エントランス】
【エントランス】
【その他共有部分】 宅配ロッカー
【駐車場】
【その他共有部分】
【キッチン】 2口ガスコンロ付きシステムキッチン
【居室・リビング】 リビング・洋室
【居室・リビング】 LD
【収納】 クローゼット
【バス】 追焚機能・浴室乾燥機付バス
【玄関】
【トイレ】 温水洗浄便座付トイレ
【洗面所】 洗面化粧台・洗濯機置場
【収納】 リビング内収納
【室内】 洋室5.4帖
【ドゥーエ日本橋浜町についてスタッフからのイチオシポイント!】「水天宮前」駅徒歩3分、外壁タイル張りマンション、2面採光の1LDK。敷金0ヶ月・礼金0ヶ月と初期費用を抑えたい方にお勧め物件です。洋室にクローゼット、LDKに物入れ、玄関にシューズクロークと収納力があります。保証会社利用必須。
ドゥーエ日本橋浜町は東京都中央区日本橋浜町3丁目7-8【東京メトロ半蔵門線 水天宮前駅徒歩5分】にある1LDK賃貸マンションです。2007年3月築の10階建てのマンションで、お部屋は10階建ての4階部分です。 物件の広さは40.1m2で人気の1LDKです。 ※お部屋のもっと詳しい内容や入居時期、諸条件のご相談など、ホームページには掲載が間に合わず載せきれていない情報もございます。 気になることが御座いましたらお気軽にメールにてお問い合わせください。
※各種情報と差異がある場合は現況優先となります
近隣スポット情報
この物件に似た物件をチェック!
閲覧した物件の履歴こだわり条件から中央区の物件を探す
最近検索した条件一覧
▲ページのTOPへ戻る |
| ||||||||||||||||||||||||||||||||||||||||||||||||||||||||||||||||||||||||||||||||||||||||
![]() |
![]() |
![]() |
